Počet nehnuteľností : 1843

Úvod    Info pre klienta    Kontakt    Prihlásenie   

Slovak   English   


ID číslo: 02271

Pridané: 04.02.2025 Upravené: 11.03.2026    Tlačiť


Rodinný dom, , Nižná Hutka, balkón, novostavba, Košice okolie



Typ

Predaj ponúka

Druh

Rodinný dom

Mesto

Nižná Hutka

Ulica

Cena

348 800,00 EUR

Rozloha bytu / plocha obytnej časti

0 m2

Celková úžitková plocha

0 m2

Celková plocha pozemku / celková zastavaná plocha

0 / 0 m2

Ďalšie obrázky


                                      

Popis nehnuteľnosti


Na predaj 4 izbový poschodový rodinný dom s garážou a vlastnou záhradkou. Vzdialenej len jeden kilometer od Košíc v obci Nižná Hutka.
RD v štádiu výstavby už v štádiu postupného dokončievania. Stavba na kľúč.

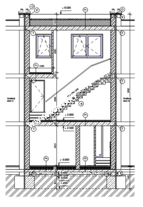
Jedná sa o kvalitnú stavbu štyroch domov, pričom každý z nich má vlastný obvodový múr a akustickú izoláciu. Materiál porotherm a polystyrén. Strecha zateplená Isover a potiahnutá geotextília. pri stavbe boli použité kvalitné materiáli.

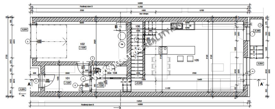
Pozemok o veľkosti cca 250 m2 z toho zastavaná plocha 96 m2. Úžitková plocha domu je 192 m2. Garáž 20 m2.

Prízemie: garáž, vstupná chodba, samostatné Wc, obývačka s kuchyňou, výstupom na záhradku
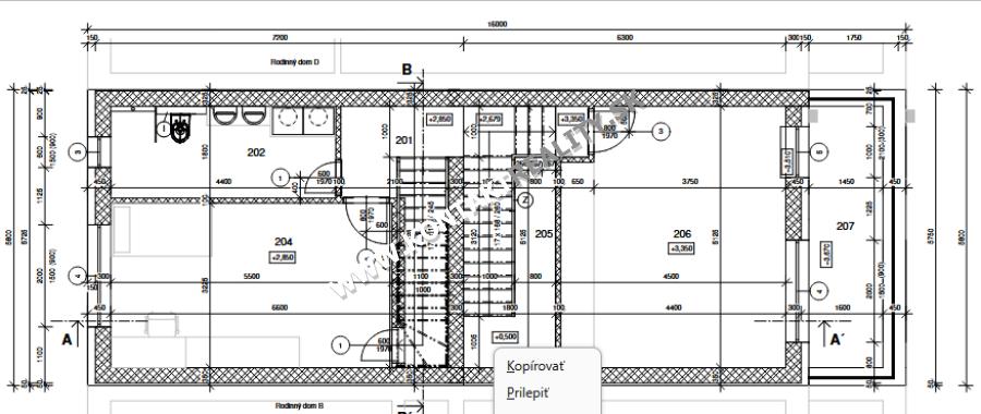
Poschodie: 2 x izba a kúpeľňa, terasa
Druhé poschodie: izba, kúpeľňa, terasa (možnosť realizácie kuchyne)

Danú ponuku si zamilujete preparkovaním auta alebo vstupom suchou nohou do domu ktorý má veľmi zaujímavo riešenú dispozíciu s prísunom denného svetla a súkromia na terasách, ako aj na záhradke.

Na prízemí domu sa nachádza technická miestnosť a podlahové kúrenie či chladenie dom zabezpečuje tepelné čerpadlo. Taktiež sa nachádza zásobník na teplú vodu.

IS : obecná voda je v štádiu projektového schválenia, momentálne studňová voda, elektrika, optika, žumpa

Pre viac informácií a možnej obhliadky ma neváhajte kontaktovať na čísle 0910 108 997


Kontakt - Maklér

Marek Ferko

0910 108 997

Charakteristika nehnuteľnosti


Stav (rekonštrukcia):

Novostavba

Balkón:

Áno

Lodžia:

Nie

Terasa:

Áno



Byty : Novostavby : Rodinné domy : Chaty-chalupy : Komerčné priestory : Garáže : Pozemky a záhrady : Mapa stránky : Kontakt


Kontakt Reality © 2013
Created by adaras